Réalisations Plans de construction, plan 3D extérieurs et plans d'éclairage

Fermette avec garage en bois de grange récupéré

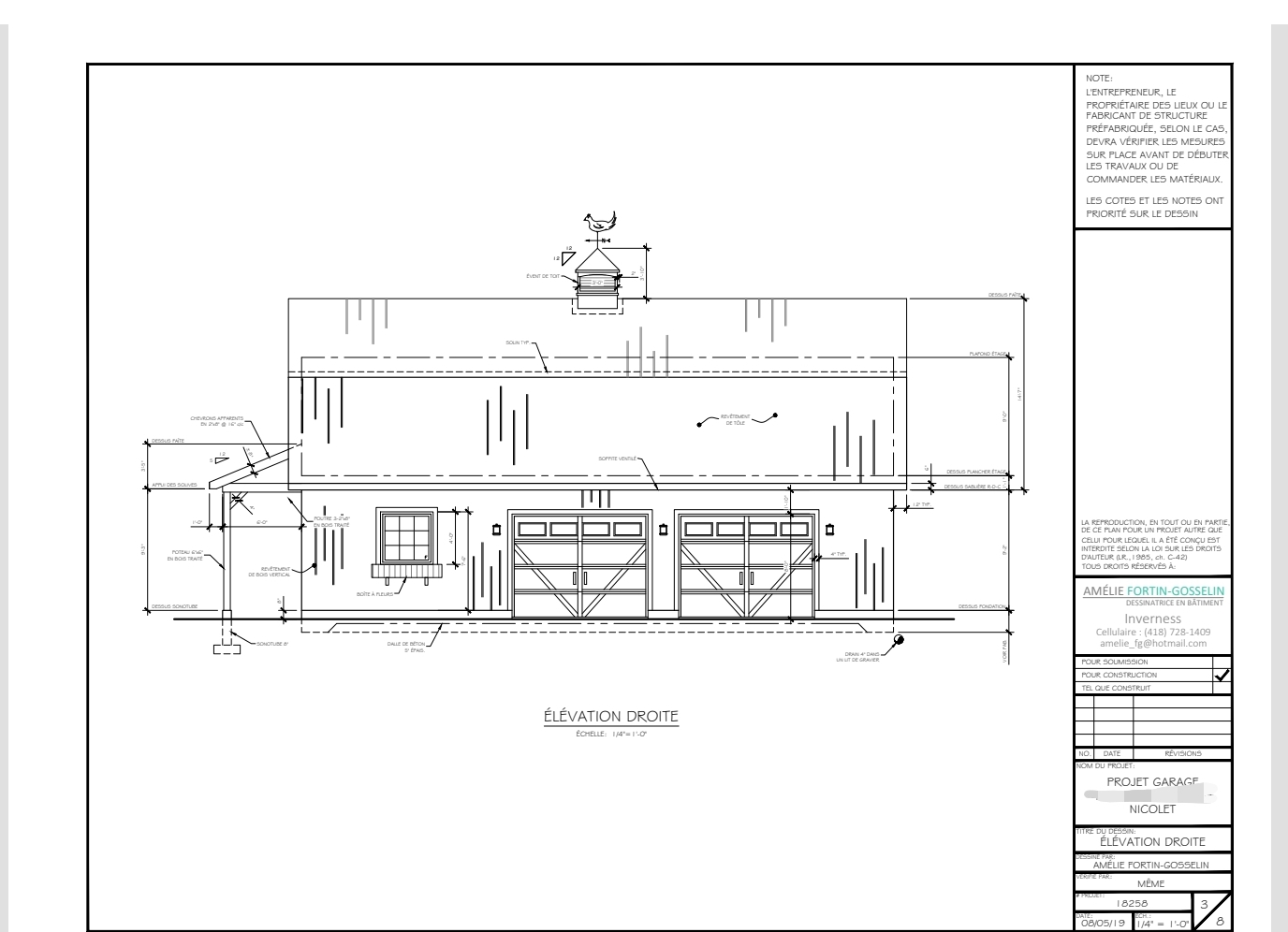
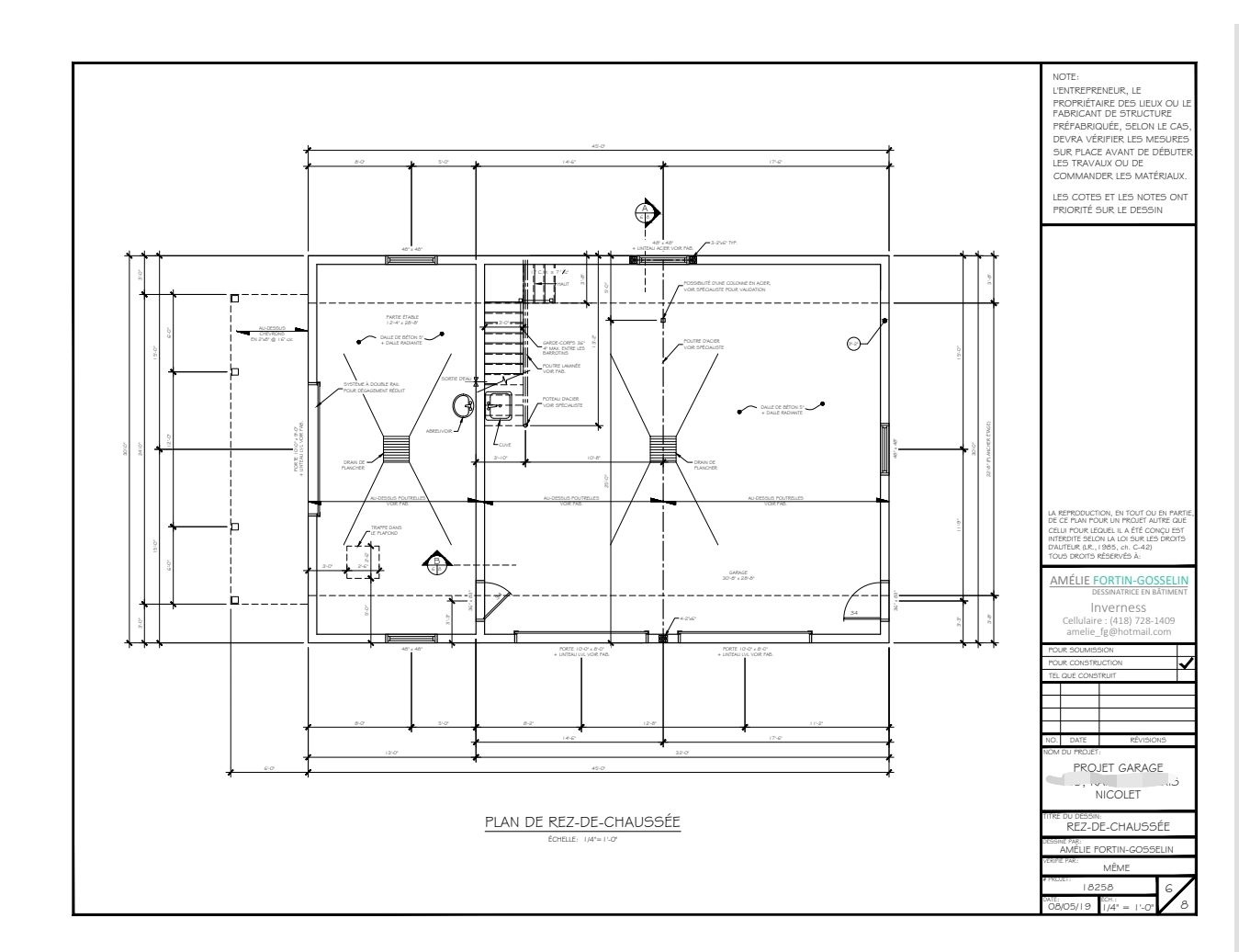
Plans pour la construction d'une fermette avec garage double pour un couple de médecins à Nicolet. Les propriétaires ayant déjà une maison ancestrale sur la propriété désiraient intégrer une petite ferme pour le plaisir des jeunes enfants ainsi qu'un garage double avec rangement à l'étage. Nous avons récupéré le bois de grange de deux anciens bâtiments afin de le réintégrer à cette nouvelle construction. L'objet étant de garder un cachet d'époque sur l'ensemble de la propriété.

S’abonner à notre page pour découvrir nos nouveautés

  • Fermette avec garage en bois de grange récupéré
  • Fermette avec garage en bois de grange récupéré
  • Fermette avec garage en bois de grange récupéré
  • Fermette avec garage en bois de grange récupéré
  • Fermette avec garage en bois de grange récupéré
  • Fermette avec garage en bois de grange récupéré
  • Fermette avec garage en bois de grange récupéré

Témoignages

Un service personnalisé et chaleureux. J'ai surtout apprécié l'honnêteté dont a fait preuve Marie-Lise. Ses conseils judicieux et appropriés me permettront de prendre une décision éclairée quant à la suite de mon projet, Elle aurait pu m'orienter dans une avenue plus rentable pour son entreprise mais elle a plutôt choisi une avenue plus appropriée pour moi. Je l'en remercie et suis maintenant assurée de sa compétence et son implication auprès de ses clients. Je ferai appel à cette entreprise avec grand plaisir,

Andrée Morin Voir tous les témoignages

Très belle expérience de travail , je recommande sans hésitation ! Bravo Marie-Lise pour ton approche avec tes collaborateurs et bon succes dans tes futurs projets .

Daniel Bilodeau, ANTIQUITÉS COMME DANS L'TEMPS Voir tous les témoignages

Je suis propriétaire d’une maison du XVIIIe siècle. J’ai confié la restauration de ma cuisine, la création de mon îlot et la finition de mon plancher à l’équipe d’Antiquité Design. Le résultat est magnifique et s’intègre à merveille à tous les éléments d’architecture d’origine. Merci à Marie-Lise et à Amélie pour vos grands talents d’artistes, votre passion, votre générosité, vos conseils et votre bonne humeur.

Seb Aubry Voir tous les témoignages

Une belle équipe qui produit de très beaux résultats. Elle a su relever le défi de la rénovation du Manoir Masson à Terrebonne de très belle façon. Merci Marie-Lise!

Stéphane Mayer, Directeur général collège Saint-Sacrement à Terrebonne Voir tous les témoignages

Dès notre première rencontre, j’ai eu un coup de cœur pour Marie-Lise d’Antiquité Design. J’ai tout de suite senti qu’elle était une personne à l’écoute de mes besoins, de mes goûts et de mes attentes. Elle est dévouée et extrêmement professionnelle. Mon conjoint et moi avons été épatés par les travaux réalisés chez nous. Je referais affaire avec elle sans hésitation et je recommande ses services. Elle a beaucoup de talent et elle connait les couleurs, les peintures et les finitions comme une pro, et même plus encore !

Josée Pelletier Voir tous les témoignages

Nous avons vraiment apprécié faire affaire avec Antiquité Design. Proprietaire d’une maison ancestrale nous avons fait appel à Marie-Lise et son équipe qui réussirent en nous faisant un plan détaillé des divisions ainsi qu’un présentation en 3D de notre cuisine de rêves. Avec ses plans et conseils judicieux on a complété de rénover par nous même les autres pièces de la maison et nous sommes plus que satisfait des résultats . Bravo et merci encore pour tes précieux conseils ... 👏🏼

Danielle Jutras - LE GRENIER D’ERNEST Voir tous les témoignages

Nous avons sollicité Marie-Lise pour l'élaboration de plans à l'échelle, de plans 3D et de plans d'élévation pour la restauration de notre propriété de type "barn house". Nous avions notre vision du projet et Marie-Lise nous a proposé de nouvelles avenues en respectant notre style et en préservant le cachet particulier que nous aimons. Son professionnalisme et ses compétences sont un gage de succès pour mener à termes des projets qui la passionnent. Son sourire, sa patience et sa disponibilité en font la personne idéale pour nous accompagner dans la suite de notre projet. Merci Marie-Lise!

Louis Ménard Voir tous les témoignages

Notre cadeau de Noël (et pour quelques autres à venir). Oh que je souhaitais depuis longtemps du blanc invitant pour bien vous recevoir. On a d’abord retrouvé le plancher de plus de 200 ans (imaginez-vous) et un bout de cette pierre qui raconte toute une histoire. Puis Marie-Lise @antiquite_design a dessiné ceci avec en bonus des tiroirs pour nos vitamines & super aliments, un frigo à jus, à la hauteur de Jonathan ☺️ et une place à l’honneur pour cette alimentation vivifiante qui donne le goût de vivre le 2 janvier à l’année. Ce qui nous a séduit : des résultats plus beaux que la promesse sur dessins... et cette hotte modelée & chaulée à l’ancienne. J’avais tellement envie de vous recevoir dans un décor enchanteur, chaleureux, épuré, invitant, énergisant. Bravo & merci tellement à toi designer passionnée, à JF & son équipe, à l’ébéniste & au rembourreur. Quel travail. (J’oublie de mentionner que c’est chez nous... Après toutes les ancestrales travaillées, notre maison aura enfin eu son tour❤️).

Jacynthe René, Maison Jacynthe Voir tous les témoignages

Oeuvrant dans le domaine des antiquités et de la restauration de luminaire d'époque, j'ai eu la chance de travailler avec Marie-Lise et son équipe à mainte reprise. Antiquité Design est une équipe professionnelle, passionnée et dévouée. Ils ont à coeur notre patrimoine et le respect de celui ci. La qualité et l'éthique de travail d'Antiquité Design est hors paire et je vous le suggère fortement ! N'hesitez surtout pas à les contacter !

Emmanuel, Historical Lights Voir tous les témoignages

J'ai partagé plusieurs projets avec Marie-Lise et son équipe comme la restauration du Manoir Masson à Terrebonne et sa chapelle. Je suis née en Croatie, j'ai étudié et travaillé pour l'Unesco en Europe sur plusieurs magnifiques bâtiments protégés. J'ai eu l'opportunité de transmettre mes connaissance et partager mon expérience avec Marie-Lise. On a une belle passion commune pour le patrimoine. Bravo de continuer à protéger votre histoire, c'est les racines des peuples.

Blazenka Kos Voir tous les témoignages

Sur Historia

Gardiens du patrimoine

"Gardiens du patrimoine" soutient six artisans qui préservent et restaurent le patrimoine bâti du Québec en utilisant des techniques ancestrales, tout en transmettant leur savoir-faire aux générations futures.

Historia